打开
新闻中心 | 桂林

惊艳 | 全州这3座大桥要大变样!设计方案公示中!

桂林头条5807

  桂林市全州县全州一桥扩建工程设计方案公示

  桂林市全州县全州一桥扩建工程设计方案公示

  为改善全州县旧城区路网现状,提高交通服务水平。现将全州县城市提升项目指挥部委托广西路桥集团勘察设计有限公司编制的全州县全州一桥扩建工程设计方案予以公示。

  一、全州一桥现状概况

  (一)全州一桥现状图:

  旧桥现状

  (二)全州一桥概况:

  全州一桥位于省道201线K0+297处,该桥于2016年重建完成,新建桥梁宽度为21m,两侧仅设置3.0m人行道,没有设置专用非机动车道,桥面为机非混行,具体布置为:3.0m(人行道)+15.0m(车行道)+3.0m(人行道)=21.0m。桥梁上部结构为4×30m先简支后连续预制T梁结构,下部结构采用埋置式桩柱式桥台,桩柱式桥墩;桥梁全长126.0m,全宽21m,设计荷载:公路-Ⅱ级。

  二、设计方案

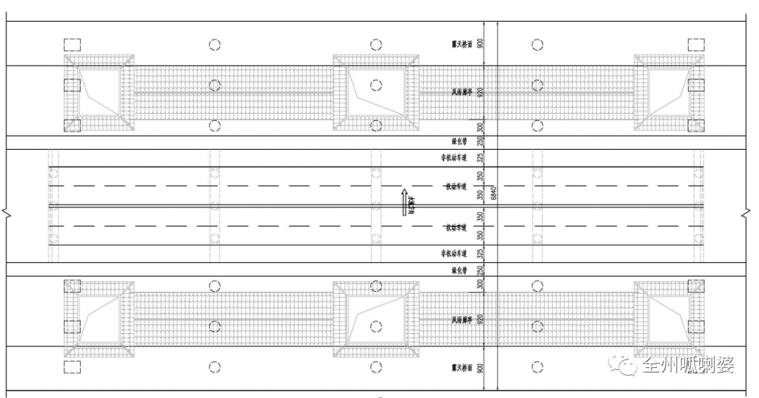
  桥梁主体结构采用4跨现浇连续箱梁桥,分上、下游两幅桥,满堂支架施工,新建桥梁与现状桥梁之间设置2cm沉降缝,单幅桥梁结构全宽23.7m,不设置悬挑景观平台,桥梁全长约135m。桥上廊、亭采用仿木造型的钢筋混凝土结构,单幅桥廊、亭结构柱间距8.2m,滴水线处宽度约10m,通行净宽4.0m;设置3个亭子(桥中一个,两端各一个)。桥梁上部结构横向设置双向1.5%的横坡进行排水。

  投资估算:方案建安费估算合计约4435万;项目总投资约5750万。

  全州一桥扩建工程效果图

  桥梁平面布置图

  横断面布置图(亭子处)

  横断面布置图(长廊处)

  现向广大市民征求意见,如有异议,请以书面形式将意见(署真实姓名和有效联系方式)于公示期内送达全州县政协办公室(联系电话:0773-4815893)。

  公示期限:自公示日起,至顺延满一个月止。

  联系人:沈琮斌,联系电话:15177326391。

  全州县城市提升项目指挥部办公室2021年12月17日

  桂林市全州县全州二桥(湘妃桥)改扩建工程设计方案公示

  桂林市全州县全州二桥(湘妃桥)改扩建工程设计方案公示

  为满足日益增长的交通需求,根据全州县城总体规划及省道201设计要求。现将全州县城市提升项目指挥部委托广西路佳道桥勘察设计有限公司编制的全州县全州二桥(湘妃桥)改扩建工程设计方案予以公示。

  一、全州二桥现状概况

  (一)全州二桥现状图:

  旧桥现状一

  旧桥现状二

  (二)全州二桥概况:

  全州二桥位于全州县境内省道201线K0+711处,旧桥建于1969年元月,为二级公路上桥梁。桥梁上跨湘妃河,旧桥全长为69.4米,宽9.6米,上构为1-50米跨片石拱桥,净矢高为8.5米,跨中截面高度为1.1米,下构桥台为浆砌块石重力式U型桥台、明挖扩大基础。

  旧桥于2012年进行全面改造,改造后设计荷载维持原来旧桥荷载不变:汽—15级,人群荷载为:3KN/m²。

  旧桥为1-50米跨空腹式片石拱桥,为满足日益增长的交通需求,根据全州县城总体规划及201省道设计要求,现对桥梁进行拓宽改造,桥位处路段规划红线宽度为28米。经与业主讨论,拟定旧桥拆除重建方案。

  二、桥涵设计原则

  本着“安全、适用、耐久、经济、美观、便于施工和养护”的原则,同时兼顾桥型美观,且与周围景观、环境相互协调,桥孔布设结合桥位处地形、地质、桥梁施工条件、施工工期、排洪、通航等多种因素协调考虑,做到技术先进、安全可靠、适用耐久与经济合理,同时做到桥型美观,利于环保的设计理念,除此还应注意以下几点:

  (一)满足两岸交通需求,做到结构安全、耐久、适用;

  (二)遵循经济合理,保证投资控制在合理范围内,做到桥型美观,结构合理;

  (三)注重桥梁与河道两岸景观相互协调,突出经典,减少审美疲劳;

  (四)尽量体现当地民族文化、民俗特色,达到“一桥一景”的设计原则。

  三、设计方案

  上承式经典拱桥,主跨50米,通道3~5米,桥梁总长为70米。

  (一)上构形式:桥梁主拱跨为1-50米,为空腹式拱桥,主拱采用箱型拱,腹拱采用实心拱板或梁式结构,主跨矢跨比采用1/6;桥梁两头设置3~5米景观通道,利于桥梁护岸步道施设。

  (二)下构设计:桥台拟采用重力式桥台接承台桩基础,后期可基础地质情况,酌情拟定桥台基础形式。

  (三)断面设计:桥面总宽度为28m=2x3.0米(人行道)+2x2.5米(非机动车道)+2x1.0米(侧分带)+15米(机动车道)。

  桥梁断面图(总宽28米)

  造价:总估算约2600万,包括桥梁两头引道过度段,房屋拆迁,桥梁亮化设计等。

 

  拱桥正立面方案效果图

  拱桥桥面方案效果图

  拱桥俯视方案效果图

  现向广大市民征求意见,如有异议,请以书面形式将意见(署真实姓名和有效联系方式)于公示期内送达全州县政协办公室(联系电话:0773-4815893)。

  公示期限:自公示日起,至顺延满一个月止。

  联系人:沈琮斌,联系电话:15177326391。

  全州县城市提升项目指挥部办公室2021年12月17日

  桂林市全州县全州三桥(水南桥)拆除重建工程设计方案公示

  桂林市全州县全州三桥(水南桥)拆除重建工程设计方案公示

  为满足日益增长的交通需求,根据全州县城总体规划及省道201设计要求。现将全州县城市提升项目指挥部委托广西路佳道桥勘察设计有限公司编制的全州县全州三桥(水南桥)拆除重建工程设计方案予以公示。

  一、全州三桥现状概况

  (一)全州三桥现状图:

  旧桥现状一

  旧桥现状二

  旧桥现状三

  (二)全州三桥概况:

  全州三桥位于全州县境内省道201线K1+597处,旧桥建于1969年元月,为二级公路上桥梁。桥梁上跨兴安河,旧桥全长为152.5米,宽9.6米,上构桥跨为39.96+40.18+39.96米跨片石拱桥,其中边跨净跨径为39.96米,净矢高为6.67米,跨中截面高度为0.9米,拱脚处截面高度为1.25米;中跨净跨径为40.18米,净矢高为6.6米,跨中截面高度为0.9米,拱脚处截面高度为1.25米。下构桥台为浆砌块石重力式U型桥台、明挖扩大基础,桥墩均为浆砌块石重力式桥墩,明挖扩大基础。

  旧桥于2012年进行全面改造,改造后设计荷载维持原来旧桥荷载不变:汽—15级,人群荷载为:3KN/m2。

  旧桥为3-40米跨空腹式片石拱桥,为满足日益增长的交通需求,根据全州县城总体规划及省道201设计要求,现对桥梁进行扩宽改造或拆除重建,桥位处路段规划红线宽度为32米,经与业主讨论,拟定旧桥拆除重建方案。

  二、桥涵设计原则

  本着“安全、适用、耐久、经济、美观、便于施工和养护”的原则,同时兼顾桥型美观,且与周围景观、环境相互协调,桥孔布设结合桥位处地形、地质、桥梁施工条件、施工工期、排洪、通航等多种因素协调考虑,做到技术先进、安全可靠、适用耐久与经济合理,同时做到桥型美观,利于环保的设计理念,除此还应注意以下几点:

  满足两岸交通需求,做到结构安全、耐久、适用;(二)遵循经济合理,保证投资控制在合理范围内,做到桥型美观,结构合理;

  (三)注重桥梁与河道两岸景观相互协调,突出经典,减少审美疲劳;

  (四)尽量体现当地民族文化、民俗特色,达到“一桥一景”的设计原则。

  (五)满足道路桥梁规划及通航、防洪需求。

  三、设计方案

  下承式拱桥方案(桥面板采用变截面连续箱梁)

  (一)上构形式:上构桥跨跨径拟定为(40+70+40)米下承式系杆拱桥,桥长为156米,计,杆拱桥拟做成装饰拱构件,不参与结构受力,仅为装饰作用,桥梁景观效果极佳。

  (二)下构设计:下构桥台拟采用桩柱式桥台,桥墩采用实体墩承台桩基础,后期可按照基础地质情况重新拟定墩台结构及基础形式,桥墩上下游考虑做迎水弧形面。                                                                                (三)断面设计:32米=2x4.0米(人行道)+2x2.5米(非机动车道)+2x1.5米(侧分带)+16米(机动车道)。

  桥梁断面图(总宽32米)

  造价:总估算约5500万,包括桥梁两头引道过度段,房屋拆迁,桥梁亮化设计等。

  下承式拱桥方案效果图(变截面)

  现向广大市民征求意见,如有异议,请以书面形式将意见(署真实姓名和有效联系方式)于公示期内送达全州县政协办公室(联系电话:0773-4815893)。

  公示期限:自公示日起,至顺延满一个月止。

  联系人:沈琮斌,联系电话:15177326391。

  全州县城市提升项目指挥部办公室

  2021年12月17日

热门评论
相关推荐
热门新闻
数据加载中...
返回顶部
取消
我要说两句...